
UPDATED:
Key Details
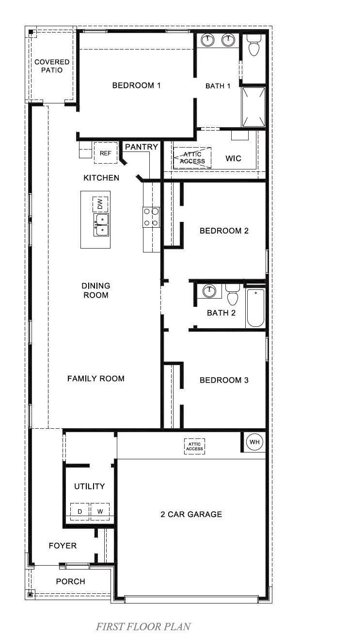
Property Type Single Family Home
Sub Type Detached
Listing Status Active
Purchase Type For Sale
Square Footage 1,535 sqft
Price per Sqft $198
Subdivision Emberly
MLS Listing ID 91514650
Style Traditional
Bedrooms 3
Full Baths 2
Construction Status Under Construction
HOA Fees $83/ann
HOA Y/N Yes
Year Built 2025
Tax Year 2025
Property Sub-Type Detached
Property Description
Location
State TX
County Fort Bend
Area Needville Area
Interior
Interior Features Breakfast Bar, Double Vanity, Entrance Foyer, Solid Surface Counters, Kitchen/Dining Combo, Programmable Thermostat
Heating Central, Gas
Cooling Central Air, Electric
Flooring Carpet, Vinyl
Fireplace No
Appliance Dishwasher, Gas Cooktop, Disposal, Gas Oven, Microwave, ENERGY STAR Qualified Appliances, Tankless Water Heater
Laundry Washer Hookup, Electric Dryer Hookup
Exterior
Exterior Feature Covered Patio, Deck, Fence, Patio, Private Yard
Parking Features Attached, Garage
Garage Spaces 2.0
Fence Back Yard
Pool Association
Amenities Available Clubhouse, Dog Park, Fitness Center, Playground, Pickleball, Pool
Water Access Desc Public
Roof Type Composition
Porch Covered, Deck, Patio
Private Pool No
Building
Lot Description Cul-De-Sac, Subdivision
Story 1
Entry Level One
Foundation Slab
Builder Name DR HORTON
Sewer Public Sewer
Water Public
Architectural Style Traditional
Level or Stories One
New Construction Yes
Construction Status Under Construction
Schools
Elementary Schools Beasley Elementary School (Lamar)
Middle Schools George Junior High School
High Schools Terry High School
School District 33 - Lamar Consolidated
Others
HOA Name Emberly Homeowner Association Inc
Tax ID NA
Security Features Prewired,Smoke Detector(s)
Acceptable Financing Cash, Conventional, FHA, VA Loan
Listing Terms Cash, Conventional, FHA, VA Loan
Virtual Tour https://youtu.be/Ck86HhPrcZg

GET MORE INFORMATION

Vicky Cedillo
Brokerage Owner | License ID: 607705
Brokerage Owner License ID: 607705
- Homes For Sale in Houston, TX
- Home for Sale in Tomball ISD
- Home for Sale in Cypress ISD
- Home for Sale in Magnolia ISD
- Home for Sale in Spring ISD
- Home for Sale in Klein ISD
- Home for Sale in Conroe ISD
- Home for Sale in Katy ISD
- Home for Sale in Humble ISD
- Home for Sale in The Heights
- Lofts | For Sale
- Highrises | For Sale
- Home for Sale in Montrose
- Lofts | For Lease
- Highrise | For Lease




